For Sale

$1,050,000

735 SRIGLEY STREET , Newmarket (Gorham-College Manor), Ontario L3Y1X6

2+2 Beds 3 Baths

Remarks

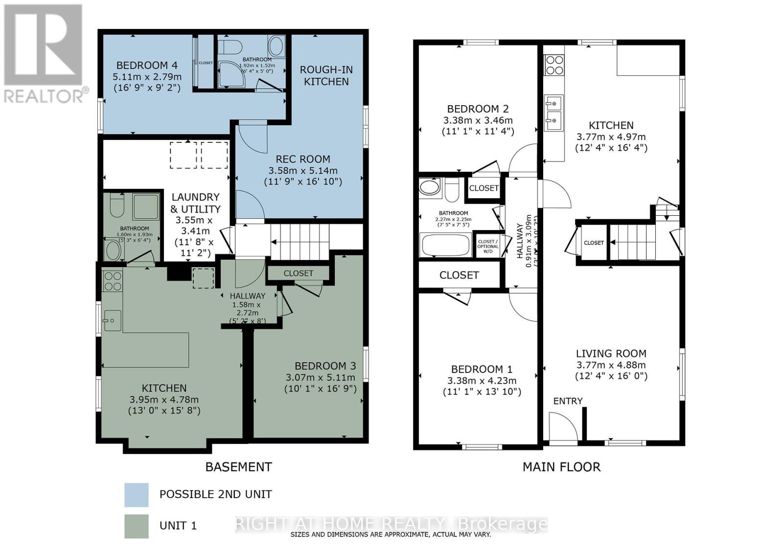
Welcome to 735 Srigley Street, where modern comfort, thoughtful upgrades, and income potential come together in this move-in-ready stunning Newmarket home. Set on a deep 187ft lot in a well-established, family-friendly neighbourhood, this property offers excellent flexibility for today's lifestyle.Inside, the home features a bright, inviting interior with pot lights throughout, hardwood flooring, beautiful tile in the kitchen and entry areas, and high-end electric smart blinds. A tastefully designed feature wall adds a sleek focal point to the main living space. The newly updated main floor kitchen features stainless steel appliances and plenty of natural light. The lower level features a renovated one-bedroom basement unit with quartz kitchen countertops, an updated bathroom, and basement laundry perfect for in-law living or rental use. The basement also has a second one-bedroom, one-bath unit roughed-in for a kitchen and can function as a separate suite or be combined with the other unit, offering excellent flexibility and strong income potential, with the entire basement estimated to generate $3,000-$3,500 per month.Outside, enjoy strong curb appeal and interlocking stone, a three-car driveway, plus a 1 car garage, all set on a huge deep lot. Located just minutes & walking distance from Downtown Newmarket, this home offers easy access to shops, dining, parks, schools, transit, and everyday essentials in a highly sought after neighbourhood. (id:7526)

Property Summary

  • Neighbourhood: Gorham-College Manor
  • Lot Frontage: 50.0 Feet
  • Lot Depth: 188.2 Feet
  • Lot Size: 50 x 188.2 FT
  • No. of Parking Spaces: 4
  • Bedrooms: 2+2
  • Bathrooms (Total): 3

Property Features:

  • Equipment Type:
    [] , Water Heater
  • Features:
    Sump Pump , []
  • Ownership Type:
    Freehold
  • Parking Type:
    Detached garage , Garage
  • Property Type:
    Single Family
  • Rental Equipment Type:
    [] , Water Heater
  • Sewer:
    Sanitary sewer

Building Features:

  • Appliances:
    Blinds , Dishwasher , Dryer , Garage door opener , Stove , Washer , Window Coverings , Refrigerator
  • Basement Type:
    N/A , N/A
  • Building Type:
    House
  • Construction Style - Attachment:
    Detached
  • Cooling Type:
    Central air conditioning
  • Exterior Finish:
    Brick
  • Foundation Type:
    Concrete
  • Heating Fuel:
    Natural gas
  • Heating Type:
    Forced air

Rooms

  • Bathroom:
    Level: Basement 6.33 m x 5.00 m
  • 4th Bedroom:
    Level: Basement 16.75 m x 9.17 m
  • Utility:
    Level: Basement 11.67 m x 11.17 m
  • Kitchen:
    Level: Basement 13.00 m x 15.67 m
  • Bathroom:
    Level: Basement 5.25 m x 6.33 m
  • 3rd Bedroom:
    Level: Basement 10.08 m x 16.75 m
  • Recreation Room:
    Level: Basement 11.75 m x 16.83 m
  • Living:
    Level: Main 12.33 m x 16.00 m
  • Kitchen:
    Level: Main 12.33 m x 16.33 m
  • Bedroom:
    Level: Main 11.08 m x 13.83 m
  • 2nd Bedroom:
    Level: Main 11.08 m x 11.33 m
  • Bathroom:
    Level: Main 7.42 m x 7.42 m
Lifestyle
Neighbourhood Info

Get More Info

Book a tour